







Agen
Location Local
9 590 € Hors Charges
Loyer : 9590 € par mois
Référence 339-ALLURE_339 |
surf 959 m2 |
Description
Vous recherchez un local commercial dans un emplacement stratégique ?ALLURE IMMO a le bien qu’il vous faut !
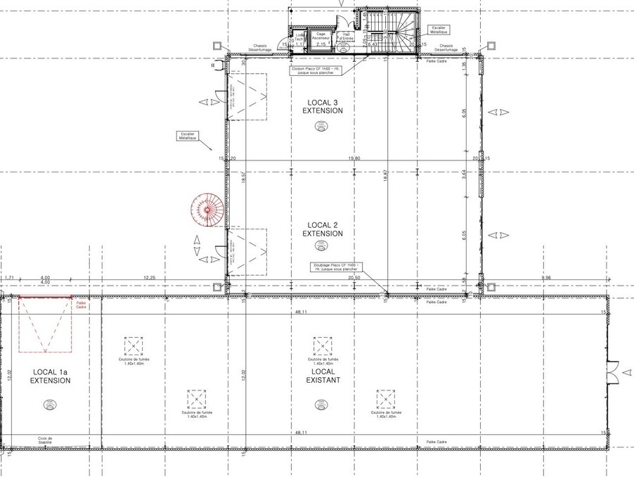
Nous vous proposons à la location un local commercial d'une superficie totale de 959m² situé en rez-de-chaussée, comprenant 477m² neufs construits en 2025 ainsi que 482m² entièrement réhabilités la même année, avec réfection complète de la toiture et des façades.
Flexible et modulable, il peut-être divisé en trois lots de 185m², 196m² et 578m².
Le local est livré brut de béton, avec fluides en attente, vous offrant ainsi une liberté totale d’aménagement selon votre activité.
Il est équipé de trois portes sectionnelles idéales pour les livraisons, de trois portes à deux vantaux et de vitrines en façade principale garantissant une excellente visibilité.
Un parking de 40 places, dont 2 réservées aux personnes à mobilité réduite, est mis à disposition afin de faciliter l’accès de votre clientèle et de vos collaborateurs.
Une connexion fibre optique assure également une connectivité optimale.
Situé dans un environnement dynamique et bien desservi, ce local est l’endroit idéal pour développer votre activité.
En choisissant ce bien, vous bénéficiez d’un emplacement stratégique à proximité de grandes enseignes telles que KFC, E.Leclerc, Conforama et bien d’autres !
Contactez dès aujourd’hui notre agence ALLURE pour organiser une visite et découvrir toutes les possibilités offertes par ce local commercial.
Disponibilité : immédiate
Loyer annuel : 115 080 € hors taxes hors charges
Charges : l'eau, l'électricité, l'entretien extérieur, les honoraires techniques et la taxe foncière
Honoraires de commercialisation, charge du preneur: 34 524 € hors taxes
Réf. 339
Honoraires de 34 524 € HT à la charge du locataire. Dépôt de garantie 19 180 €. Non soumis au DPE. Les informations sur les risques auxquels ce bien est exposé sont disponibles sur le site Géorisques : georisques.gouv.fr.