Vous recherchez un local commercial proche de grandes et belles enseignes ? ALLURE IMMO a le bien qu’il vous faut !
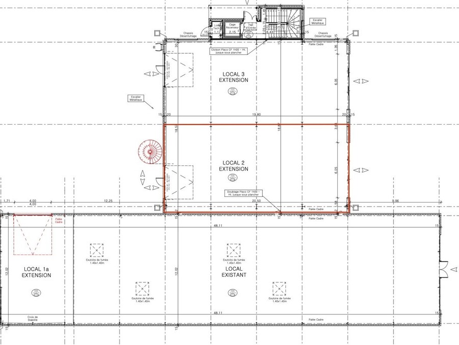
Nous vous proposons à la location un local commercial d’une superficie d’environ 196m², situé au rez-de-chaussée d’un bâtiment neuf construit en 2025.
Le local est livré brut de béton, avec fluides en attente, prêt à être aménagé selon vos besoins. Il est équipé d'une porte sectionnelle, d'une porte battante à deux ventaux, ainsi que d'une vitrine sur la façade principale, offrant une visibilité optimale pour votre activité.
D’autres surfaces sont également disponibles (196m², 578m² et 959m²), permettant d’adapter votre installation à votre projet.
Vous disposerez d’un parking commun de 40 places, dont 2 réservées aux personnes à mobilité réduite, pour faciliter l’accès de votre clientèle et de vos collaborateurs, ainsi que d’une connexion fibre optique assurant une connectivité optimale.
Situé dans un environnement dynamique et bien desservi, ce local commercial est l'endroit idéal pour développer votre activité. En choisissant ce bien, vous optez pour un emplacement stratégique, à proximité de grandes et belles enseignes (KFC, Métro, Conforama...).
Contactez-nous dès aujourd'hui pour organiser une visite et découvrir par vous-même tout le potentiel de ce local commercial neuf.
Honoraires de 7 644 € HT à la charge du locataire. Dépôt de garantie 4 246 €. Non soumis au DPE. Les informations sur les risques auxquels ce bien est exposé sont disponibles sur le site Géorisques : georisques.gouv.fr.