




Agen
Location Local
5 780 € Hors Charges
Loyer : 5780 € par mois
Référence 388-ALLURE_388 |
surf 578 m2 |
Description
Vous recherchez un local commercial sur la commune d’Agen ?ALLURE IMMO a le bien qu’il vous faut !
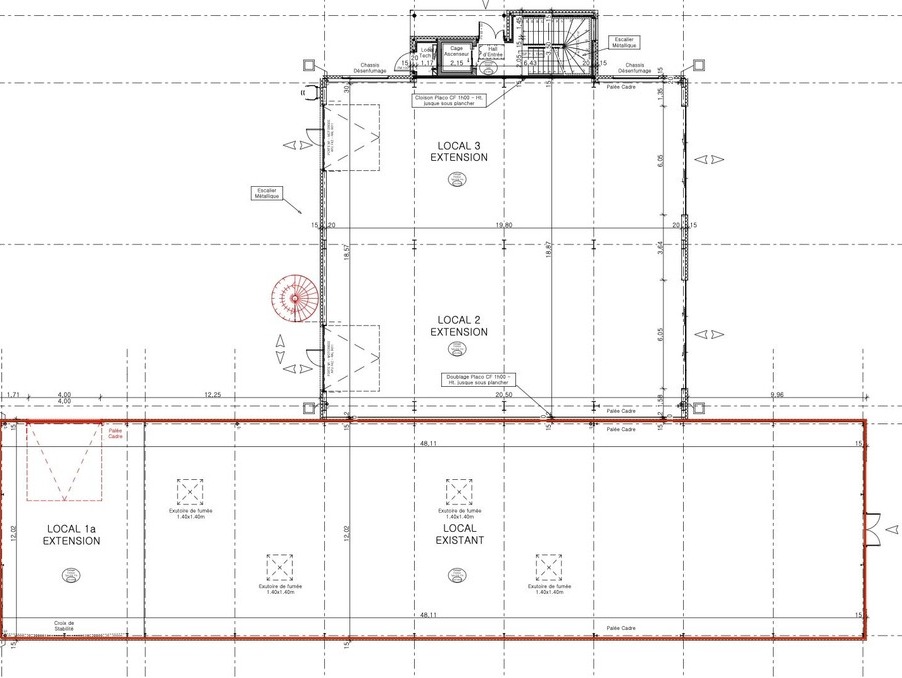
Nous vous proposons à la location un local commercial d’une superficie totale de 578m², incluant 96m² neufs construits en 2025 et 482m² rénovés la même année avec réfection complète de la toiture et des façades.
Le local est livré brut de béton avec les fluides en attente, vous laissant une entière liberté pour l’aménager selon vos besoins et vos projets.
Il est équipé d’une porte sectionnelle idéale pour les livraisons, d’une porte battante à deux vantaux et d’une vitrine sur la façade principale qui garantit une excellente visibilité.
D’autres surfaces sont également disponibles, notamment 185m², 196m² et 381m².
Un parking de 40 places, dont 2 réservées aux personnes à mobilité réduite, est mis à disposition afin de faciliter l’accès au site pour vos clients et vos collaborateurs.
Ce local bénéficie d’un emplacement stratégique qui en fait l’opportunité idéale pour lancer ou développer votre activité.
Implanté au cœur de la zone commerciale la plus dynamique de la ville, ce local profite d’un environnement attractif à proximité immédiate de grandes enseignes telles que Conforama, KFC, Métro et bien d’autres.
Contactez-nous dès aujourd’hui pour organiser une visite et découvrir tout le potentiel de ce local commercial.
Disponibilité : immédiate
Loyer annuel : 69 360€ hors taxes hors charges
Charges : eau, électricité, entretien extérieur, honoraires techniques, taxe foncière
Honoraires de commercialisation, charge preneur : 20 808€ hors taxes
Réf.388
Honoraires de 20 808 € HT à la charge du locataire. Dépôt de garantie 11 560 €. Non soumis au DPE. Les informations sur les risques auxquels ce bien est exposé sont disponibles sur le site Géorisques : georisques.gouv.fr.